влевовправо

Описание
Характеристики
Информация для заказа
Проект и строительство деревянного дома из бруса
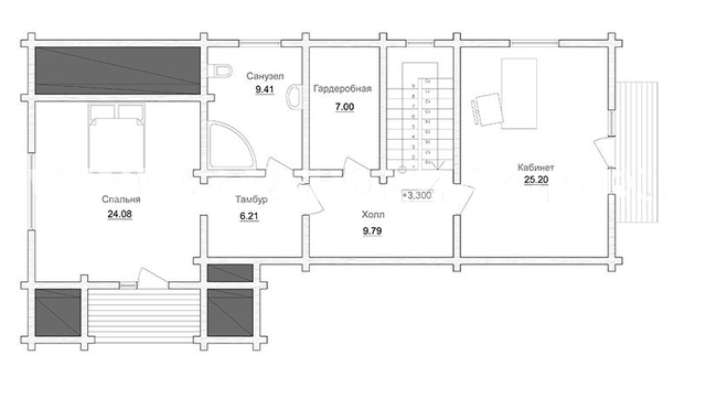
- Площадь объекта: 229 м 2
- 1 этаж: 122,31 м 2
- 2 этаж: 81,69 м 2
- Балконы и терассы: 25 м 2
- Спальни: 2
- Санузла: 2
В стоимость входит:
- домокомплект из клеенного бруса (стены внутренние и наружные), сечение бруса 210х185 мм.
- стропильно-балочная система (стропила из клеенного бруса 85х210 мм, обрешётка из сухой доски 25х150 мм)
- расходные материалы (джутовый утеплитель, нагель-шкант, шпильки, гайки, шайбы, болты, гидроизоляция "технониколь" и прочее)
- монтаж домокомплекта и стропильно-балочной системы
- доставка до г. Астана +20 км в радиусе города
Деревянный дом - это привлекательный внешний вид и такой дом отлично смотрится в окружающем его лесистом ландшафте.
- Частный жилой дом по индивидуальному проекту под ключ. Архитектурные планировки выполнены с учетом современных мировых тенденций частного домостроения. Выполнен из клееного бруса камерной сушки, произведен по ГОСТу.
Общая площадь дома составляет 229 квадратных метров. - Срок возведения домокомплекта 2-8 недель.
Проекты деревянных домов: проект двухэтажного дома из бруса


Актуальная цена на деревянные дома от компании "Лесторгстрой" и высокое качество строительства нами гарантирована! Есть вопросы? Звоните нам или пишите на watts app с 9-00 до 17-00 в будние дни.
Наша компания готова построить вам дом из бруса по этому проекту.
В стоимость входит:
- домокомплект из клеенного бруса (стены внутренние и наружные), сечение бруса 210х185 мм.
- стропильно-балочная система (стропила из клеенного бруса 85х210 мм, обрешётка из сухой доски 25х150 мм)
- расходные материалы (джутовый утеплитель, нагель-шкант, шпильки, гайки, шайбы, болты, гидроизоляция "технониколь" и прочее)
- монтаж домокомплекта и стропильно-балочной системы
- доставка до г. Астана +20 км в радиусе города
8-701-524-04-36

| Основные | |
|---|---|
| Страна производитель | Россия |
| Производитель | Watts |
| Пользовательские характеристики | |
| Площадь (м. кв.) | 229 |
| Спальня | 2 |
| Этажность | 2 |
| Санузел | 2 |
- Цена: от 55 625 000 ₸




